- 個別見学会
- 下田井
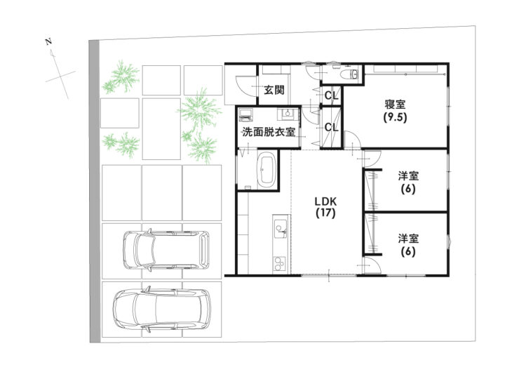
- 3LDK
【ご予約受付中】 自然とリビングにつどう平屋
毎日開催中

▪高松市下田井町にて平屋の見学会開催!▪
リビングにつながる空間や無垢床の柔らかさ、
勾配天井の開放感が特徴の平屋です。
お仕事に宿題に便利な多目的スペースがみどころ。
ぜひお気軽にご来場ください♩
* 見学会は完全予約制です *
– Concept –
自然とリビングにつどう平屋
◆ POINT ◆
・白×木目のコントラストが美しい外観
・どの部屋からも繋がるリビングまでの導線
・お仕事や宿題に便利な多目的スペース
・肌触りがよくあたたかみを感じる無垢フローリング
– 全体MAP-
平日もご参加いただけますので、
ぜひお気軽にご来場ください♩
標準設備
KITCHEN - キッチン -

【 OFELIA / タカラスタンダード 】
お手入れのしやすさと収納力がポイント。毎日の家事がはかどるキッチンです。

【 ホーロークリーンパネル 】
汚れが染み込まないホーローなので、油汚れも水拭きでさっと落とせます。
BATHROOM - 浴室 -

【 サザナ / TOTO 】
頭と首をしっかり支え、背中を包み込み自然とリラックスできる姿勢になれる浴槽。お手入れも簡単。

【 浴室乾燥機 】
暖房・衣類乾燥・換気・涼風の1台4役。花粉・梅雨の季節など天気を気にせず洗濯物が干せるので家事もカンタン。
OTHER - その他 -

【 無垢フローリング 】
あたたかみを感じる無垢のフローリングは思わず素肌で触れたくなる肌触り。経年変化を楽しむこともできます。

【 玄関ドア/YKKap 】
スマートキー対応。リモコンを持っていれば、ドアハンドルのボタンを押すだけで施解錠できます。
イベント概要
| 開催日時 | 毎日開催中 |
|---|---|
| 開催場所 | ナチュレ下田井1号地 ( 高松市下田井町字滝ノ本 ) |
| お問い合わせ電話番号 | 087-880-7311 |








