LINE

EVENT

  • 建売住宅フェア
  • 下田井
  • 3LDK 4LDK

【3棟同時】平屋&二階建てモデルハウス販売会|高松市下田井町

11/1(土) ・2(日)・3(祝月) 10:00~17:00

来場特典│無印ギフトカード

 

 

人気の高松市下田井町にて
“平屋&2階建て モデルハウス販売会”
を3日間限定で開催!!

 

家具・照明・カーテン・エアコン2台が付いた
モデルハウス特別仕様の平屋2棟・二階建て1棟です♩

 

「自分たちの暮らしに合うお家にすぐに住みたい!」
という方必見のイベントです。

 

★ 気に入れば即ご入居可能 ★

 

 

 

― ご案内モデルハウス ―

 

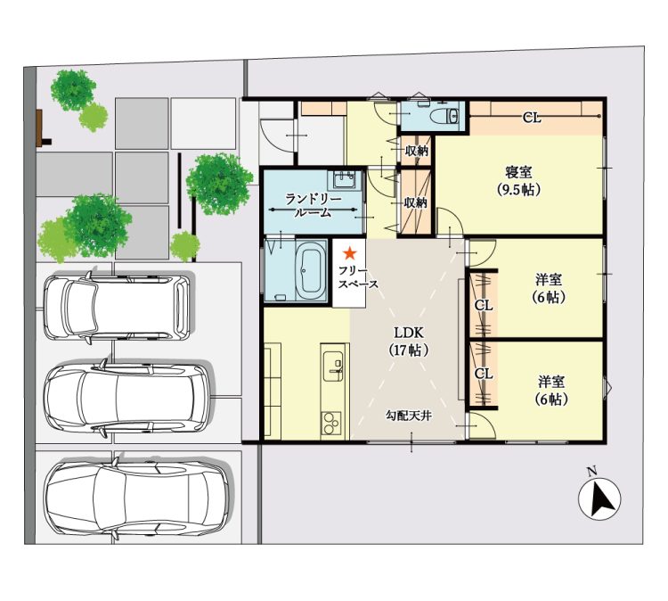
    ナチュレ下田井 1号地    

価格:2,830万円(税込)

 – 勾配天井 × フリースペース –
( 3LDK )

1号地

■ 土地面積:220.92㎡(66.82坪) □ 施工床面積:86.94㎡(26.29坪)

□ 延床面積:81.15㎡(24.54坪) □ 建築面積:86.95㎡(26.30坪)

1号地_間取り

 

▽▽ご予約はこちらから! ▽▽

「お問合せ・その他メッセージ」欄に
【 1号地予約 】とご記入ください。

 

 

 

    ナチュレ下田井 2号地    

価格:3,210万円(税込)

– たっぷり収納 × モルタルデッキ –
( 3LDK )

■ 土地面積:232.63㎡(70.37坪) □ 施工床面積:94.40㎡(28.55坪)

□ 延床面積:81.15㎡(24.54坪) □ 建築面積:94.40㎡(28.55坪)

 

▽▽ご予約はこちらから! ▽▽

「お問合せ・その他メッセージ」欄に
【 2号地予約 】とご記入ください。

 

 

 

    ナチュレ下田井 8号地    

価格:3,195万円(税込)

– 吹き抜け × 造作ダイニングカウンター –
( 4LDK )

■ 土地面積:192.22㎡(58.14坪) □ 施工床面積:107.78㎡(32.60坪)

□ 延床面積:99.78㎡(30.17坪) □ 建築面積:64.31㎡(19.45坪)

8号地_間取り

 

▽▽ご予約はこちらから! ▽▽

「お問合せ・その他メッセージ」欄に
【 8号地予約 】とご記入ください。

 

【 ナチュレ下田井 分譲地物件概要 】
●所在地/高松市下田井町字滝ノ本●交通/琴電長尾線「水田駅」まで徒歩11~12分●校区/高松市立川添小学校(1,100~1,160m)高松市立協和中学校(1,900~1,960m)●地目/宅地●用途地域/指定なし 特定用途制限地域:一般・環境保全型●建ぺい率/60%●容積率/100%●電気/四国電力●ガス/プロパン●水道/公営(高松市)〈負担金要〉●排水/合併処理浄化槽(放流負担金:1戸当り初回のみ5人槽70,000円)

 

皆様のご来場お待ちしております。

イベント概要

開催日時 11/1(土) ・2(日)・3(祝月) 10:00~17:00
開催場所 ナチュレ下田井
お問い合わせ電話番号 087-880-7311

ご来場予約お申し込みフォーム

必要事項に入力の上、「入力確認画面へ」ボタンを押してください。


イベント名
希望日時 ご予約日時を選択してください。

※当日、翌日のご予約はお電話にてお願いいたします。
※日程調整をさせていただく場合がございます。
※営業時間:9:30~18:30 定休日:水曜

参加人数
  • 大人
  • 子ども
お名前
ふりがな
ご住所
  • 郵便番号
  • 都道府県
  • 市区町村
  • 丁目番地
  • 建物名・部屋番号
メールアドレス
電話番号
ロータリーハウス不動産をどこで知りましたか? ※複数選択可
お問い合わせ・その他メッセージ
個人情報について 個人情報の取り扱いに同意する

お客様に入力して頂いた氏名・住所・電話番号・メールアドレス等の個人情報は今後、弊社もしくは関係会社において、弊社が出展または主催する展示会・セミナーのご案内、弊社が提供する商品・サービスに関するご案内など各種情報のご提供、及び弊社営業部門からのご連絡などを目的として利用させて頂きます。弊社は、ご提供いただいた個人情報を、法令に基づく命令などを除いて、あらかじめお客様の同意を得ないで第三者に提供することはありません。

イベント一覧へ戻る