- 資料請求
資料請求
随時受付中

![]()

【ご成約済|4/26(日)まで見学可】
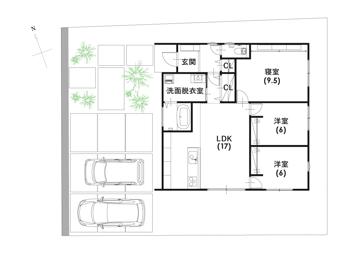
白×木目のコントラストが美しい外観の平屋。
どの部屋に入るにもリビングを通るので、
家族との自然なコミュニケーションが叶います。
多目的スペースや無垢床も見どころポイント。
販売価格
-万円
(※土地・建物・外構費込み)
ナチュラルなLDKは家族が集う開放的な空間。肌触りのよい無垢床を使用しています。
リビングの一角に設けた多目的スペース。お仕事やお子さまの宿題を見守る空間として使うことができます。
寝室は空間を広く見せる収納にしました。
洋服だけでなくお気に入りの小物を並べて
こだわりのスペースに。


お手入れのしやすさと収納力がポイント。毎日の家事がはかどるキッチンです。

汚れが染み込まないホーローなので、油汚れも水拭きでさっと落とせます。

頭と首をしっかり支え、背中を包み込み自然とリラックスできる姿勢になれる浴槽。お手入れも簡単。

暖房・衣類乾燥・換気・涼風の1台4役。花粉・梅雨の季節など天気を気にせず洗濯物が干せるので家事もカンタン。

あたたかみを感じる無垢のフローリングは思わず素肌で触れたくなる肌触り。経年変化を楽しむこともできます。

スマートキー対応。リモコンを持っていれば、ドアハンドルのボタンを押すだけで施解錠できます。
| 敷地面積 | 220.89㎡ (66.81坪) | 施工床面積 | 86.95㎡ (26.30坪) |
|---|---|---|---|
| 延床面積 | 81.15㎡ (24.54坪) | 建築面積 | 86.95㎡ (26.30坪) |
| 屋根 | ガルバリウム鋼板 |
|---|---|
| 外壁 | 塗り壁・木目サイディング |
| 玄関ドア | 断熱玄関ドアD2仕様 電気錠ポケットキー付 |
| 外部建具 | 樹脂サッシ・Low-Eガラス(遮熱タイプ) |
| 内壁 | クロス |
| 内装ドア | H2,288mm |
| 給湯設備 | エコキュート460ℓ 引き渡し時設置予定 |
| キッチン | 【 OFELIA / Takara standard 】 システムキッチンW2550mm カップボード |
| 洗面台 | 【 Octave Lite / TOTO 】洗面化粧台W900mm |
| ユニットバス | 【 サザナ / TOTO 】ユニットバス1坪(1616)サイズ |
| トイレ | 【 TOTO 】超節水ウォシュレット一体型便器 |
| 床材 | 無垢床 洗面脱衣室、トイレ:フロアタイル |
| その他 | 照明器具 カーテン、カーテンレール |